Integrated Water- and Wastewater Project - Bulgaria
Establishment of a mechanic and biological sewage treatment plant
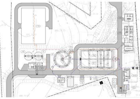
A mechanic and biological sewage treatment plant is planned to be built with advanced wastewater purification and sludge stabili-sation in the city of Cherven Brjag. The plant is initially considered for 15,000 PE and will be extended to 22,500 PE from 2020 onwards. Therefore, working out a concept for the first stage already includes the extension design for the future.
The activated sludge process with primary denitrification and aerobe sludge stabilisation was chosen. In addition, biological phos-phor elimination was taken into consideration. The sewage treatment plant basically consists of an inlet lifting system with a coarse screen, a combined fine screen and grit chamber unit, two aeration tanks, a clarifier, a sludge drainage system with a sludge silo and a sludge liquor storage tank, chlorination and an operation building. Design of the distribution network and prepa-ration of applications for the European Union support were carried out by Bulgarian partners.
Project/technical data:
| Capacity | 15,000 PE |
|---|---|
| Qth | 184 m³/h |
| QM | 367 m³/h |
| COD | < 125 mg/l |
| BOD5 | < 25 mg/l |
| TSS | < 35 mg/l |
| Ntot | < 15 mg/l |
| Ptot | < 21 mg/l |
| pH | 6 - 9 |

